
➥ Bild dient nur der Veranschaulichung - Abbildung ähnlich
Holzherd Tyrola TR_A 80: Die anpassungsfähige Feuerstätte zum Kochen und Heizen
Durch einen höhenverstellbaren Sockel passt sich dieser Holzherd beinahe jeder Küchenzeile an und kann dank integrierter Brandschutzeinheiten sicher integriert werden. Möglichkeiten für eine persönliche Note bieten die verschiedenen matten Farbvarianten die Sie für die Verkleidung wählen können.Stahl- oder Keramikglas-Kochfeld: Welche Herdplatte darf es sein?
Bei der Herdplatte haben Sie die Wahl zwischen verschiedenen Varianten: Stahl oder Glaskeramik. Darüber hinaus kann er durch weiteres Zubehör genau an Ihre Küche und an Ihren persönlichen Geschmack angepasst werden.
- Herdplatte aus Stahl mit Kochlochdeckel
- Herdplatte aus Stahl mit Gusseisenringe
- Herdplatte aus Glaskeramik
Merkmale:
- Herdverkleidung in versch. matten Ausführungen
- Tür zum Feuerraum wahlweise mit dreifach verglastem Sichtfenster (dann NUR in Edelstahl oder Schwarz möglich)
- Bratrohr aus Edelstahl
- inkl. 1x Backblech und 1x Backrost
- doppelte Verglasung + Thermometer in der Bratrohrtür
- Edelstahlrahmen mit 40 mm Höhe
- mit Plattenwinkel hinten 50 mm Höhe
- Edelstahlherdstange vorne
- schamottierte Brennkammer, gewährleistet eine hohe Flammentemperatur
- integrierte Brandschutzeinheiten, zum Einbau zwischen den Küchenmöbeln
- Leistungsregler, sowohl händisch als auch automatisch mittels Sonde
- Herdplatte aus 8 mm Stahl, Glaskeramik optional
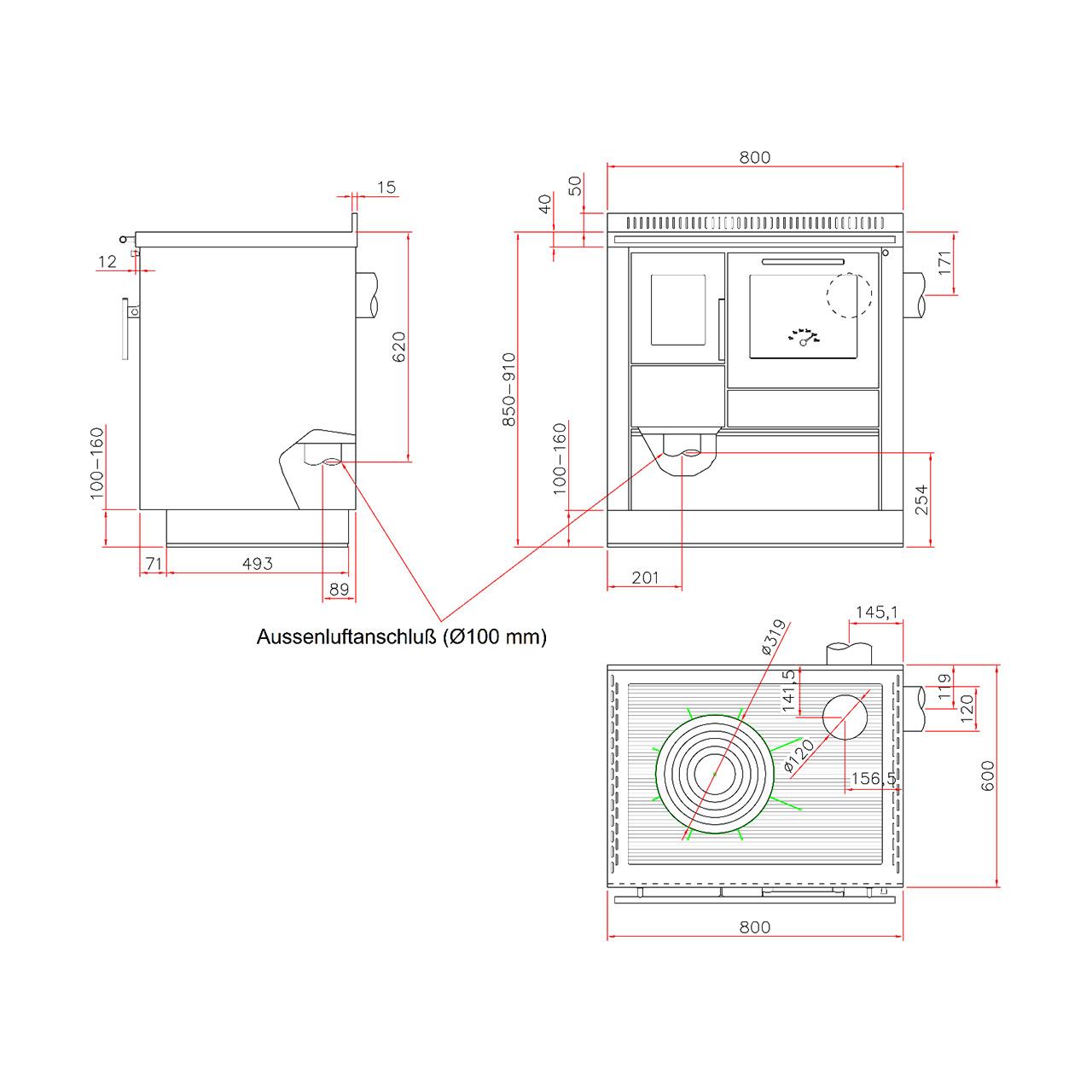
- Höhenverstellbarer Sockel, 850 - 910 mm
- Wärmeisolierter Edelstahlgriff an der Feuerraumtür
- ausziehbare Holzschublade
- Rauchabgang hinten, seitlich oder oben (NUR auf Stahlherdplatte), rechts oder links
- integrierter Außenluftanschluss, für externe Luftzufuhr
- EN 12815/ DIN 18880/ BImSchV Stufe 2/ Art. 15a B-VG Österreich/ VKF AEAI
Technische Daten:
| Energieeffizienzklasse | ![]() |
| Nennheizleistung | 7,16 kW |
| Wirkungsgrad | 89,47 % |
| Abgastemperatur | 145,6 °C |
| Empfohlener Zug | 12 Pa |
| Abgasmassenstrom | 5,4 g/s |
| CO-Ausstoß (13% O2) | 0,073 % |
| Staub Emission (13% O2) | 24,5 mg/Nm³ |
| Rauchanschluss | Ø 120 mm |
| Verbrennungsluftanschuss | Ø 100 mm |
| Abmessungen Herd | H850-910/B800/T600 mm |
| Abmessungen Feuertür | H258/B194 mm |
| Abmessungen Feuerraum | H296/B205/T420 mm |
| Abmessungen Herdplatte | H8/B687/T487 mm |
| Abmessungen Bratrohr | H265/B300/T420 mm |
| Gewicht | 185 kg |
| Artikel-Nr.: | P-0000000E6F7D |
|---|---|
| Energieeffizienzklasse: | aa |
| Farbe: | Beige |
| Geprüft: | Art. 15a BVG, BlmSchV St. 2, VKF Schweiz |
| Nennleistung kW, direkt: | 7 |
| Verbrennungsluft: | Raumluftunabhängig |
| Verkleidungsmaterial: | Stahl |
| Wärmetransport: | Luftführend |
-
Energieeffizienzlabel Tyrola TRA 80
-
Bedienungsanleitung
-
Datenblatt
Einbaukamine
freistehende Öfen
alternative Brennstoffe
Schornsteinsysteme
Schornsteinzubehör
Schornsteinaufbauten
Abgasrohre
Sicherheit
Accessoires
Wartung
Reinigung
Heiztechnik
Heizungszubehör
Speicher
Angebote im XXL Sale %
wenig Platz
Brennstoff
Zubehör
Smoken
Grillart
Backofen
Wellness
Feuerstellen
Außenküche
Unsere Markenwelt
