Kamineinsatz BeF Twin 10 N II – Panorama-Aussicht in Ihren Kamineinsatz

Nachverbrennung in Ihrem Kamineinsatz BeF Twin 10 N II
Auf diese Leistung können Sie sich freuen
Merkmale::
- Kamineinsatz mit großzügiger Frontverglasung und rückseitiger Stahltür
- Beidseitige Beschickung
- Feuerraumtüren beidseitig schwenkbar
- modern bedruckte Sichtscheiben
- Beidseitige Verbrennungsregulierung
- Feuerraum mit Carcon ausgekleidet
- verbesserte Scheibenspülung
- Feuerraumboden mit Rost aus Gusseisen und Aschekasten
- Rauchrohranschluss nach oben
- Externe Verbrennungsluftzufuhr
- Brennstoff: Holz bis 65 cm
- DIN EN 13229, BImSchV Stufe 2, 15a B-VG Österreich
Technische Daten:
- Nennwärmeleistung: 14 kW
- Abgasstutzen: 200 mm
- Wirkungsgrad: 83 %
- Abgastemperatur: 242°C
- Mittlere CO-Emission (13% O2): 0,0981 %
- Mittlere Staub-Emission: 29 mg/Nm³
- Mindestförderdruck: 10 Pa
- Verbrauch pro Stunde: 3,95 kg
- Abgasmassenstrom: 10,6 g/s
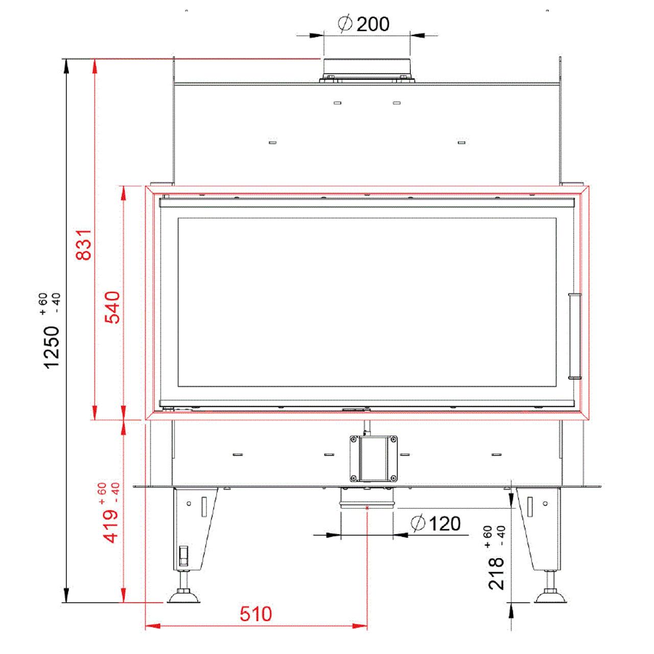
- Abmessungen Sichtscheibe: B950/H468 mm
- Abmessungen: H1250xB992xT517 mm
- Gewicht: 268 kg
Sonderzubehör
- 4-seitiger Einbaurahmen
- Doppelverglasung
- Feuerraumauskleidung
- versteckter Griff "Kalte Hand"
- verstellbare Füße
| Artikel-Nr.: | 31046 |
|---|---|
| Energieeffizienzklasse: | aa |
| Brennstoff: | Holz |
| Geprüft: | 15a BVG, BImSchV St. 2 |
| Nennleistung kW, direkt: | 14 |
| Verbrennungsluft: | Raumluftunabhängig |
| Verglasung: | Front |
| Wärmetransport: | Luftführend |
-
Bedienungsanleitung BeF Twin 10 N II
-
Datenblatt BeF Twin 10 N II
-
Energieeffizienzlabel BeF Twin 10 N II
Einbaukamine
freistehende Öfen
alternative Brennstoffe
Schornsteinsysteme
Schornsteinzubehör
Schornsteinaufbauten
Abgasrohre
Sicherheit
Accessoires
Wartung
Reinigung
Heiztechnik
Heizungszubehör
Speicher
Angebote im XXL Sale %
wenig Platz
Brennstoff
Zubehör
Smoken
Grillart
Backofen
Wellness
Feuerstellen
Außenküche
Unsere Markenwelt