
Kamineinsatz BeF Twin 8 II Durchsicht – moderner Tunneleinsatz in flacher Konstruktion
Brennzelle mit Caronverkleidung für eine optimale Wärmenutzung

Die weiteren Vorteile des Kamineinsatz BeF Twin 8 II
Details:
- robuster Kamineinsatz mit Tunnelverglasung
- Feuerraumtür schwenkend zu bedienen
- Türgriff mit echtem Leder
- Feuerraumauskleidung aus dem Speichermaterial Carcon
- einfache Steuerung Verbrennungsluft im Brennraum durch einen Regler
- moderne bedruckte Sichtscheibe
- Feuerraumboden mit Rost aus Gusseisen und Aschekasten
- Rauchrohranschluss nach oben
- externe Verbrennungsluftzufuhr möglich
- DIN EN 13229/ BImSchV Stufe 2/ Art. 15a B-VG (Österreich)
Technische Daten:
- Nennwärmeleistung: 10 kW
- Wirkungsgrad: 80 %
- Abgasmassenstrom: 9,3 g/s
- Abgastemperatur: 240 °C
- Notwendiger Förderdruck: 12 Pa
- CO-Emission bez. auf 13 % O2: 0,0993 %
- Staub bez. auf 13 % O2: 30 mg/Nm³
- Stündlicher Abbrand: 2,75 kg/h
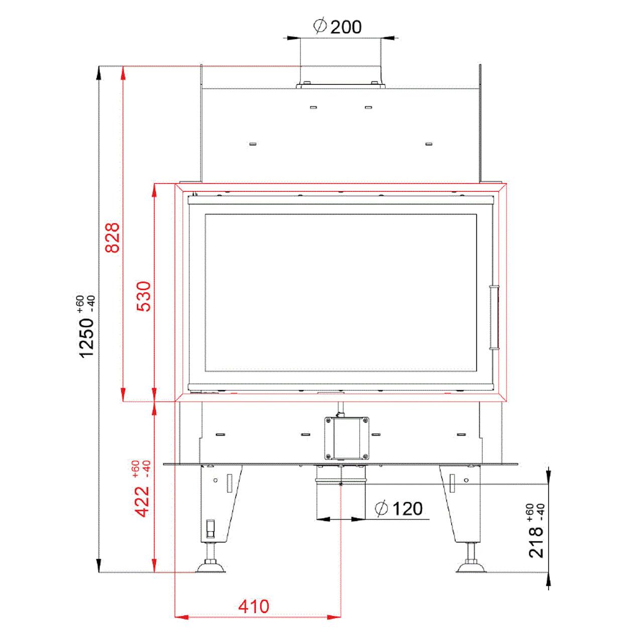
- Abgasstutzen: 200 mm
- Verbrennungsluftstutzen: 120 mm
- Gesamtgröße der Glasscheibe: 2x H750/B468 mm
- Abmessungen: ca. H1250/B1820/T552 mm
- Gewicht: ca. 197 kg
Zubehör:
- Stellfüße
- verschiedene Einbaurahmen schwarz
- Doppelverglasung
- versteckter Griff "kalte Hand"
- Feuerraumauskleidung
| Artikel-Nr.: | 31028 |
|---|---|
| Energieeffizienzklasse: | aa |
| Brennstoff: | Holz |
| Geprüft: | BImSchV St. 2 |
| Nennleistung kW, direkt: | 10 |
| Verbrennungsluft: | Raumluftunabhängig |
| Verglasung: | Durchsicht |
| Wärmetransport: | Luftführend |
-
Datenblatt BeF Twin II 10
-
Produktdatenblatt BeF Twin II 10
Einbaukamine
freistehende Öfen
alternative Brennstoffe
Schornsteinsysteme
Schornsteinzubehör
Schornsteinaufbauten
Abgasrohre
Sicherheit
Accessoires
Wartung
Reinigung
Heiztechnik
Heizungszubehör
Speicher
Angebote im XXL Sale %
wenig Platz
Brennstoff
Zubehör
Smoken
Grillart
Backofen
Wellness
Feuerstellen
Außenküche
Unsere Markenwelt