BeF Therm 6 CP/CL: Kamineinsatz mit 2-seitiger Eckverglasung
Brennraumauskleidung mit Carcon für eine lange Wärmehaltung in der Feuerkammer

Für mittelgroße Zimmer geeignet
Details:
- kompakter Kamineinsatz mit 2-seitiger Eckverglasung rechts oder links
- Feuerraumtür schwenkbar
- Türgriff mit echtem Leder
- Feuerraumauskleidung aus dem Speichermaterial Carcon
- einfache Steuerung der Verbrennungsluft im Brennraum durch einen Regler
- moderne bedruckte Sichtscheibe
- verbesserte Scheibenspülung durch längeren Abgasweg
- Feuerraumform aerodynamisch, sorg für bessere Abgasströmung
- Feuerraumboden mit Rost aus Gusseisen und Aschekasten
- Rauchrohranschluss nach oben
- externe Verbrennungsluftzufuhr möglich
- DIN EN 13229/ BImSchV Stufe 2/ Art. 15a B-VG (Österreich)
Technische Daten:
- Nennwärmeleistung: 6 kW
- Wirkungsgrad: 82 %
- Abgasmassenstrom: 4,6 g/s
- Abgastemperatur: 262 °C
- Notwendiger Förderdruck: 12 Pa
- CO-Emission bez. auf 13 % O2: 0,0873 %
- Staub bez. auf 13 % O2: 19 mg/Nm³
- Stündlicher Abbrand: 1,85 kg/h
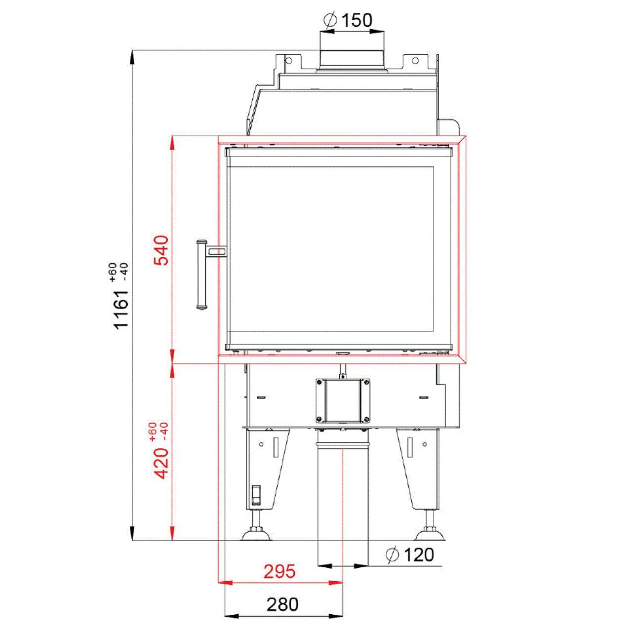
- Abgasstutzen: 150 mm
- Verbrennungsluftstutzen: 120 mm
- Gesamtgröße der Glasscheibe: H530/H330/B468 mm
- Abmessungen: H1161/B557/T454 mm
- Gewicht: ca. 126 kg
Zubehör:
- Stellfüße
- verschiedene Einbaurahmen schwarz
- Doppelverglasung
- Versteckter Griff "Kalte Hand"
- Feuerraumauskleidung
| Artikel-Nr.: | 7021245 |
|---|---|
| Energieeffizienzklasse: | aa |
| Ausführung: | Türanschlag rechts |
| Brennstoff: | Holz |
| Geprüft: | 15a BVG, BImSchV St. 2 |
| Nennleistung kW, direkt: | 6 |
| Verbrennungsluft: | Raumluftunabhängig, Raumluftunabhängig |
| Verglasung: | 2 Seiten |
| Wärmetransport: | Luftführend |
-
Typenschild BeF Therm 6 CP/CL
-
Bedienungsanleitung BeF Therm 6 CP/CL
-
Datenblatt Therm 6 CP/CL
-
Datenblatt BeF Therm 6 CP/CL
-
Energieeffizienzlabel BeF Therm 6 CP/CL
Einbaukamine
freistehende Öfen
alternative Brennstoffe
Schornsteinsysteme
Schornsteinzubehör
Schornsteinaufbauten
Abgasrohre
Sicherheit
Accessoires
Wartung
Reinigung
Heiztechnik
Heizungszubehör
Speicher
Angebote im XXL Sale %
wenig Platz
Brennstoff
Zubehör
Smoken
Grillart
Backofen
Wellness
Feuerstellen
Außenküche
Unsere Markenwelt