
➥ Bild dient nur der Veranschaulichung - Abbildung ähnlich
BeF Double 7 N Feel: Kamineinsatz mit Durchsicht aufs Feuer und hinterer Stahltür
Kamineinsatz BeF Double 7 N Feel bietet eine maximale Wärmespeicherung dank Carcon-Verkleidung der Brennkammer
BeF Double 7 N Feel und seine Leistung
Details:
- robuster Kamineinsatz mit großzügiger Frontverglasung
- Feuerraumtür schwenkbar
- rückseiteige Stahltür, erleichtert die Reinigung
- Feuerraumauskleidung aus dem Speichermaterial Carcon in weiß oder schwarz
- einfache Steuerung Verbrennungsluft im Brennraum durch einen Regler
- modern bedruckte Sichtscheibe
- Feuerraumboden mit Rost aus Gusseisen und Aschekasten
- Rauchrohranschluss nach oben
- externe Verbrennungsluftzufuhr möglich
- DIN EN 13229/ BImSchV Stufe 2/ Art. 15a B-VG (Österreich)
Technische Daten:
- Nennwärmeleistung: 7 kW
- Wirkungsgrad: 82 %
- Abgasmassenstrom: 6,5 g/s
- Abgastemperatur: 232 °C
- Notwendiger Förderdruck: 12 Pa
- CO-Emission bez. auf 13 % O2: 0,0811 %
- Staub bez. auf 13 % O2: 18 mg/Nm³
- Stündlicher Abbrand: 2,47 kg/h
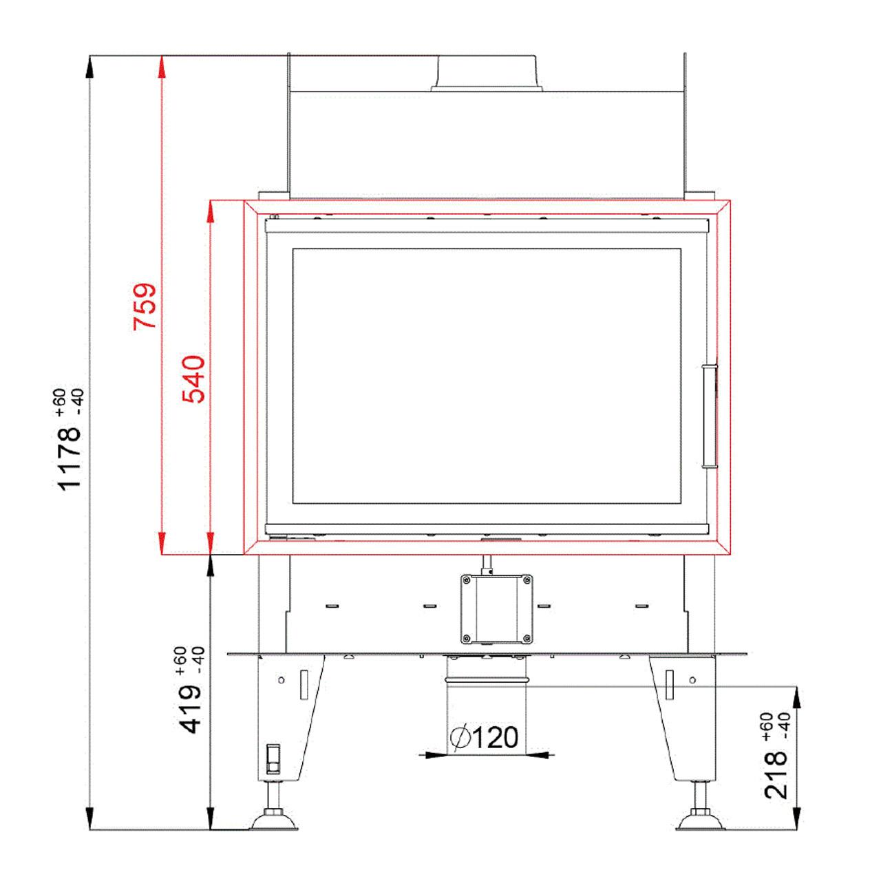
- Abgasstutzen: 150 mm
- Verbrennungsluftstutzen: 120 mm
- Gesamtgröße der Glasscheibe: B670/H468 mm
- Abmessungen: ca. H1178/B740/T391 mm
- Gewicht: ca. 129 kg
Zubehör:
- Stellfüße
- Blendrahmen, 4-seitig schwarz
- Doppelverglasung
- Feuerraumauskleidung
- Versteckter Griff "Kalte Hand"
| Artikel-Nr.: | 31017 |
|---|---|
| Energieeffizienzklasse: | aa |
| Brennstoff: | Holz |
| Geprüft: | 15a BVG, BImSchV St. 2 |
| Nennleistung kW, direkt: | 7 |
| Verbrennungsluft: | Raumluftunabhängig |
| Verglasung: | Front |
| Wärmetransport: | Luftführend |
-
Produktdatenblatt BeF Double 7 N Feel
-
Bedienungsanleitung BeF Double 7 N Feel
-
Energieeffizienzlabel BeF Double 7 N Feel
-
Datenblatt BeF Double 7 N Feel
-
Typenschild BeF Double 7 N Feel
Einbaukamine
freistehende Öfen
alternative Brennstoffe
Schornsteinsysteme
Schornsteinzubehör
Schornsteinaufbauten
Abgasrohre
Sicherheit
Accessoires
Wartung
Reinigung
Heiztechnik
Heizungszubehör
Speicher
Angebote im XXL Sale %
wenig Platz
Brennstoff
Zubehör
Smoken
Grillart
Backofen
Wellness
Feuerstellen
Außenküche
Unsere Markenwelt