Kaminbausatz Nordpeis Osaka T: Der neue Tunnel-Kamin von Nordpeis
Reversibler Aufbau sorgt für maximale Freiheit
Merkmale:
- Kaminanlage mit Tunnel-Kamineinsatz
- mit seitlichem Holzfach
- Verkleidung aus Wärmespeicherbeton-Fertigteilen
- kann farblich individuell gestaltet werden
- Heizeinsatz mit Glastür Exclusive in Schwarz
- Doppelverglasung: verfügt über eine Doppelverglasung, die auch bei geringer Leistung eine besonders gute Verbrennung gewährleistet
- IR Max Beschichtung: Technologie die für leichtes Heizen sowie saubereres Glas sorgt.
- Anschlussmöglichkeit: oben, hinten, seitlich
- externe Verbrennungsluftzufuhr möglich
Technische Daten:
| EN 16510-2-1:2022 ✓ BImSchV Stufe 2 ✓ ECODESIGN 2022 ✓ |
|
| Energieeffizienzklasse | ![]() |
| Nennwärmeleistung | 6,8 kW |
| Wirkungsgrad | 78 % |
| Abgasmassenstrom | 8,0 g/s |
| Abgastemperatur am | 261 °C |
| Temperatur am Abgasstutzen | 313 °C |
| Mindestförderdruck | 12 Pa |
| CO Emissionen bei 13% O2 | < 1250 mg/Nm³ |
| Emissionen Nox bei 13% O2 | 103 mg/Nm³ |
| Emissionen OGC bei 13% O2 | 99 mg/Nm³ |
| Emissionen Staub bei 13% O2 | 20 mg/Nm³ |
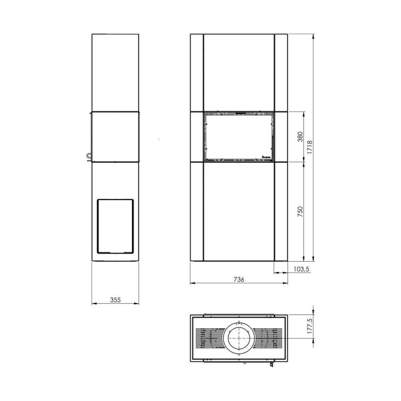
| Abgasanschluss | Ø 150 mm |
| Maße | H1718/B736/T355 mm |
| Höhe bis Mitte Abgasstutzen hinte | H1410 mm |
| Brennstofflänge | max. 40 cm |
| Gewicht | 292 kg |
Optionales Zubehör
- Zuluftset (Durchmesser 80 mm)
- Wanddurchführung Zuluft: Zum Nachrüsten Ihrer Kaminanlage. Gemeinsam mit der Frischluftzufuhr verwenden, wenn zusätzliche Luftzufuhr notwendig ist.
- Holzgriff für Feuerraumtür
- Osaka vorlegeplatte Glas klar
- PowerStone Speicherblock 59kg (nur bei Rauchrohranschluß nach oben möglich
- Aschebox: gefertigt aus Stahl und kann in die Brennkammer-Auskleidung eingesetzt werden. Mit dem Griff kann die Aschebox einfach entfernt werden, um die kalte Asche zu entleeren.
| Artikel-Nr.: | 704193 |
|---|---|
| Anschlusshöhe Abgang hinten (mm): | 1410 |
| Durchmesser: | 150mm |
| Energieeffizienzklasse: | a |
| Farbe: | Grau |
| Form: | Eckig |
| Scheitholzlänge: | bis 40 cm |
| Ausführung: | Rahmen Schwarz |
| Ausstattung: | Holzfach |
| Brennstoff: | Holz |
| Geprüft: | BImSchV St. 2, ECODESIGN 2022, EN 16510 |
| Nennleistung kW, direkt: | 6 |
| Rauchrohranschluss: | Hinten, Oben, Seitlich |
| Speicherofen: | Ja |
| Typ: | Kaminbausatz |
| Verbrennungsluft: | Raumluftunabhängig, Raumluftunabhängig |
| Verglasung: | Durchsicht |
| Verkleidungsmaterial: | Beton |
| Wärmetransport: | Luftführend, Luftführend |
-
tri_pdf_und_dokumente_sonstiges_masszeichnung
-
Gebrauchsanweisung
-
Produktdatenblatt
-
Installationsanleitung
-
Energieeffizienzlabel
-
Technisches Datenblatt
Einbaukamine
freistehende Öfen
alternative Brennstoffe
Schornsteinsysteme
Schornsteinzubehör
Schornsteinaufbauten
Abgasrohre
Sicherheit
Accessoires
Wartung
Reinigung
Heiztechnik
Heizungszubehör
Speicher
Angebote im XXL Sale %
wenig Platz
Brennstoff
Zubehör
Smoken
Grillart
Backofen
Wellness
Feuerstellen
Außenküche
Unsere Markenwelt
