
Montagebeispiel, Verkleidung nicht im Lieferumfang enthalten
Kamineinsatz Varia C-45h-4S mit optimiertem Abbrand
8 kW Nennwärmleistung
- Kamineinsatz mit 3-seitiger Verglasung
- Korpus aus robustem Stahl
- Feuerraumtür hochschiebbar, mit Linksanschlag zum Reinigen
- Front mit verdecktem Scheibenrahmen
- 4-seitig bedruckte Sichtscheibe
- einfache Einhebelbedienung
- Schamotte Feuerraumauskleidung
- Feuerraumtür auch selbstschließend erhältlich
- flexibel verstellbare Abgaskuppel, Anschluss nach oben oder nach hinten
- praktischer, integrierter Aschenkasten
- DIN EN 13229/ BImSchV Stufe 2/ Art. 15a B-VG Österreich
Technische Daten:
| Energieeffizienz-Klasse | ![]() |
|
| Nennwärmeleistung | kW | 8 |
| Wärmeleistungsbereich | kW | 5,6 - 10,4 |
| Wirkungsgrad | % | > 80 |
| empf. Schornsteindurchmesser | Ø mm | 180 |
| Abgasanschluss | Ø mm | 180 |
| mögl. Abgasanschluss | Ø mm | - |
| Gewicht | kg | 230 |
| Erf. Mindestquerschnitt für Um-/ u. Zuluft (mit WLM) | cm² | 700 |
| Erf. Mindestquerschnitt für Um-/ u. Zuluft (ohne WLM) | cm² | 930/1120 |
| Abgasmassenstrom | g/s | 7,53 |
| Abgastemperatur (am Abgasstutzen) | °C | 255 |
| Erf. Förderdruck | Pa | 12 |
| CO2 | 9,2 | |
| Erf. Durchmesser nach M-FeuVo | cm | 15 |
| Verbrennungsluftbedarf | m³/h | 25,8 |
| Abstände Heizkammer | cm | zur Heizkammerwand: 12 zum Aufstellboden: - |
| Abstand im Strahlungsbereich | mm | vorne: 800 seitlich: 800 hinten: - |
| Wärmedämmung (Beispiel Steinwollmatten nach AGI-132 Q) | cm | Aufstellboden: - Anbauwand: 8 Seitenwand: 6 Decke: - Vormauerung bei zu schützender Wand: 10 |
| Ersatzdämmstoff Calciumsilicat * | cm | Aufstellboden: - Anbauwand: 7 Seitenwand: 5 Decke: - |
| Wärmeverteilung | % | Konvektion: 56 Sichtscheibe: 44 H2O: 0 |
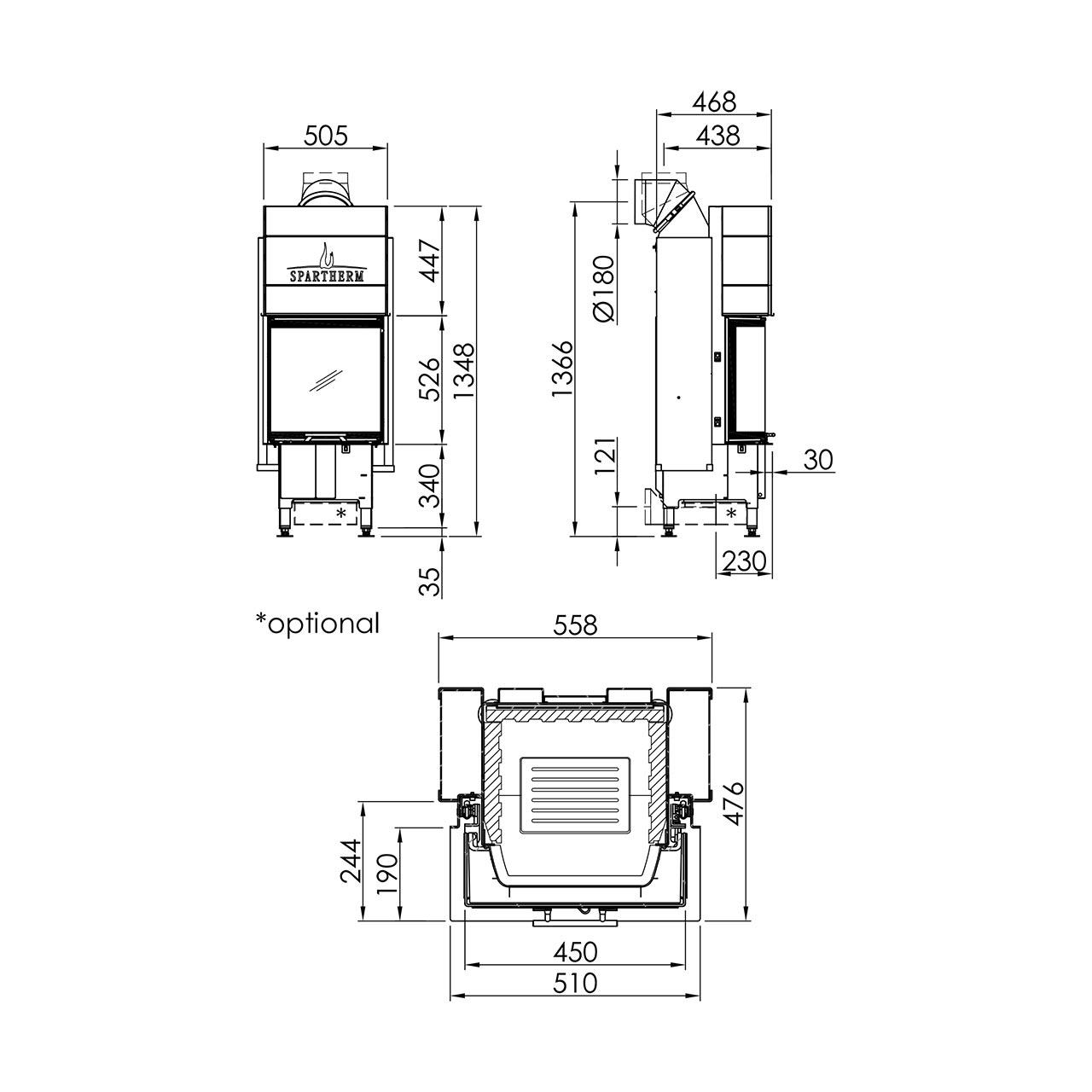
| Einbaumaß | mm | H526/B510/T230 |
| Scheitholzlänge | cm | 33 |
| Artikel-Nr.: | 38417 |
|---|---|
| Energieeffizienzklasse: | aa |
| Brennstoff: | Holz |
| Geprüft: | 15a BVG, BImSchV St. 2 |
| Nennleistung kW, direkt: | 8 |
| Verbrennungsluft: | Raumluftunabhängig |
-
Datenblatt
-
Leistungserklärung
-
Bedienungsanleitung
-
EU Produktdatenblatt
-
Energieeffizienzlabel
Einbaukamine
freistehende Öfen
alternative Brennstoffe
Schornsteinsysteme
Schornsteinzubehör
Schornsteinaufbauten
Abgasrohre
Sicherheit
Accessoires
Wartung
Reinigung
Heiztechnik
Heizungszubehör
Speicher
Angebote im XXL Sale %
wenig Platz
Brennstoff
Zubehör
Smoken
Grillart
Backofen
Wellness
Feuerstellen
Außenküche
Unsere Markenwelt
