
Kaminbausatz Neocube C24: Modernes Design nach Ihrem Wunsch!
Freie Individualisierung passend zu ihrem Wohnstil
Schnelle und einfache Installation
Kaminbausatz mit effizienter Verbrennung
Merkmale:
- gerades, modernes Design
- hochwertige Verarbeitung
- einfache Montage
- Verkleidung aus edler Sinterkeramik (z. B. Edelrost-, Beton- oder Holzoptik)
- große Eckscheibe mit hochschiebbarer Tür
- flexibler Rauchrohranschluss (oben oder hinten)
- Kamin ist für externe Verbrennungsluft vorbereitet
| Technische Daten | |
|---|---|
| BImSchV Stufe 2 ✓ Ecodesign ✓ | |
| Energieeffizienzklasse | ![]() |
| Nennwärmeleistung | 7,8 kW |
| Leistungsbereich | 3,9-10,1 kW |
| geeignete Brennstoffe | Scheitholz |
| Wirkungsgrad | 80 % |
| Abgasmassenstrom | 6,9 g/s |
| Ø Abgasstutzentemperatur | 229 °C |
| Mindestförderdruck | 11 Pa |
| Rauchrohranschluss | Ø 150 mm |
| Verbrennungsluftanschluss | Ø 125 mm |
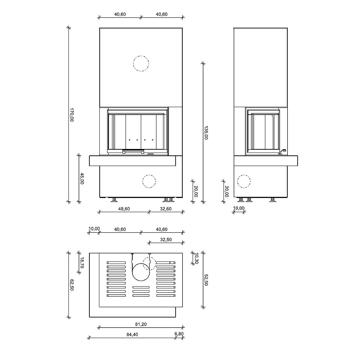
| Maße (H x B x T) | 170 x 91,2 x 62,5 cm |
| Höhe Abgasanschluss hinten | 1350 mm |
| Länge der Holzscheite | 33 cm |
| Maße Sichtscheibe (H x B x T) | 42 x 58 x 31 cm |
| Gewicht | 325 kg mit Wärmespeicher: +75 kg |
| Sicherheitsabstände zu brennbaren Materialien | hinten 0 mm seitlich 0 mm
vorn 800 mmoben 700 mm |
Neocube Manufaktur "feel free!"
Ofenbank-Verlängerung |
Ofenbank Erweiterung nach vorne |
Ofen Erhöhung |
Ofen deckenhoch |
Ofen Vertiefung |
Sichtscheibe nach oben |
Ofenbank gespiegelt (C-Modelle) |
Ofenbank Material-Mix |
neocube Holzfächer |
Rückseite geschlossen |
neocube millimetergenau |
Weitere Keramik-Oberflächen |

















| Artikel-Nr.: | 7037902 |
|---|---|
| Energieeffizienzklasse: | aa |
| Form: | Eckig |
| Brennstoff: | Holz |
| Geprüft: | BImSchV St. 2 |
| Nennleistung kW, direkt: | 7 |
| Verbrennungsluft: | Raumluftunabhängig |
-
EU Produktdatenblatt
-
Bedienungsanleitung
-
Maßzeichnung
-
Konformitätserklärung
-
Datenblatt isoPRO
-
Leistungserklärung
-
Datenblatt C24
Einbaukamine
freistehende Öfen
alternative Brennstoffe
Schornsteinsysteme
Schornsteinzubehör
Schornsteinaufbauten
Abgasrohre
Sicherheit
Accessoires
Wartung
Reinigung
Heiztechnik
Heizungszubehör
Speicher
Angebote im XXL Sale %
wenig Platz
Brennstoff
Zubehör
Smoken
Grillart
Backofen
Wellness
Feuerstellen
Außenküche
Unsere Markenwelt

