
Neocube C12: Kaminbausatz der ganz besonderen Art!
Der Kaminbausatz Neocube C12 besitzt eine Verkleidung aus Keramik, die sich durch viele Vorteile auszeichnet.
Zum Beispiel ist die Keramikverkleidung hochwertig verarbeitet, 100% natürlich und vollständig recyclebar. Zudem ist sie kratz- und biegefest, wasserundurchlässig, temperaturbeständig, antibakteriell, hygienisch, leicht zu reinigen, UV-beständig und widerersteht Säuren und Basen.
Aus den in unserem Onlineshop angebotenen acht Standard-Keramik-Varianten können Sie sich den Kaminbausatz Neocube C12 farblich online individuell konfigurieren und sowohl für das Unterteil, das Oberteil oder auch für das Türelement unterschiedliche Keramik definieren.
Die Neocube Kaminanlage ist mit einer Nennwärmeleistung von 7,8 kW sowie einem Wirkungsgrad von über 82 % ausgestattet. Für eine langanhaltende Wärmespeicherung empfehlen wir Ihnen den optionalen Zusatzspeicher aus Naturstein mit einem Gewicht von etwa 75 kg. Die zweiseitige Feuerraumtür lässt sich leicht nach oben hin öffnen. Sie ermöglicht den Zugang zur Brennkammer, in der Scheithölzer mit einer Länge von bis zu 50 cm verfeuert werden können. Serienmäßig ist ein Stutzen für die externe Luftzufuhr verbaut, mit dem falls gefordert, die nötige Verbrennungsluft von außerhalb des Aufstellraumes zugeführet werden kann. Insofern Sie sich für den Kaminbausatz Neocube C12 entscheiden, werden Sie schon bald eine effiziente und sparsame Feuerstätte Ihr eigen nennen.
Schnell und einfach montiert dank Modulbauweise
Damit Sie die Kaminanlage Neocube C12 einfach und schnell montieren können, besteht er lediglich aus wenigen Elementen. Ein intelligentes Einstellsystem ermöglicht das einfache gegeneinander Verstellen und Ausrichten aller Keramik-Bestandteile. Der Kaminbausatz kann, auch bei einer zu schützenden Wand, wandbündig montiert werden. Auf unserer Neocube-Kategorieseite finden Sie ein Video das veranschaulicht, wie einfach sich die Montage des Kaminbausatzes Neocube C12 gestaltet. Dort erhalten Sie übrigens auch einen Gesamtüberblick über alle Modelle und deren Besonderheiten.
Gestalten Sie mit Feel Free! Ihren Neocube C12 noch individueller!
Noch mehr Gestaltungsspielraum bietet das "feel-free!-Konzept". Die Abmessungen des Neocube Kaminbausatzes können im 10 cm Raster individuell an Ihre Bedürfnisse zum pauschalen Aufpreis angepasst werden. Die individuellen Anpassungen werden dabei bereits im Werk vorgenommen, um eine sehr einfache Montage und höchste Qualität zu gewährleisten. Bei der Auswahl von mehreren feel-free-Optionen! erhalten Sie außerdem einen Zusatzrabatt: wird eine zweite feel-free-Zusatzoption gewählt, erhälten Sie zusätzlich 20% Rabatt auf diese Option. Bei einer dritten Option 30%, bei einer vierten 40% usw.
Nutzen Sie die Feel Free! Rabattstaffellungen und besprechen Sie die weiteren Details mit einem unserer Fachberater unter unserer Servicenummer:
034 601 - 27 100
(Bundesweit zum Ortstarif)
Wir erstellen Ihnen hierzu gern ein individuelles und unverbindliches Angebot. Lassen Sie sich von unseren beratern die unterschiedlichen Möglichkeiten aufzeigen, die Ihnen das Feel Free!-Konzept bietet!
| Ofenbank-gespiegelt: Bei diesem Modell besteht die Möglichkeit die Ofenbank von der einen Ofenseite auf die andere in der gleichen Größe zu spiegeln. Das heißt, die Ofenbank befindet sich damit auf der dem Feuer abgewandten Seite. | |
| Ofenbank-Verlängerung: Die Ofenbank kann diese in 10 cm-Schritten in eine oder beide Richtungen verlängert werden. Die max. Verlängerung beträgt 100 cm. | |
| Ofenbank-Erweiterung nach vorne: Die Ofenbank kann in 10 cm-Schritten um bis zu 50 cm nach vorne erweitert werden. | |
| Ofen-Erhöhung: Das obere Keramikelement kann bei nicht zu schützenden Wänden in 10 cm-Schritten um bis zu 50 cm erhöht werden. | |
| Ofen-Vertiefung: Der Neocube C12 kann entweder um 10 oder 20 cm tiefer gefertigt werden. | |
| Türelement, andere Keramik: Standardmäßig ist das Keramikelement neben der Sichtscheibe immer im Material der oberen Schürze ausgeführt. Optional kann dieses Element auch in einer eigenen Keramik-Ausführung ausgewählt werden. | |
Details Kaminbausatz Neocube C12:
- hochschiebbare Sichtscheibe
- beeindruckendes Design mit zweiseitiger Sichtscheibe
- wandbündige Montage
- geringe Bautiefe
- modulare Bauweise
- geschlossene Keramik-Kanten
- hochwertige keramische Oberflächen
- viele Kombinationsmöglichkeiten
- einfache Montage dank modularer Bauweise
- Rauchrohranschluss nach oben oder hinten
- vorbereitet für externe Verbrennungsluftzufuhr
- DIN EN 13229/ DIN EN 13240/ BImSchV Stufe 2/ Art. 15a B-VG Österreich/ DINplus
- Luftspalt zum Boden - Grundsätzlich weisen alle Modelle der C-Serie ein Spaltmaß von ca. 40 mm zwischen Boden und Unterkante der Schürze auf. Dieses kann durch Demontage der Kontermuttern auf ca. 25 mm verkürzt werden.
Technische Daten Kaminbausatz Neocube C12:
- Energieeffizienzklasse: A+
- Nennwärmeleistung: 7,8 kW
- Wärmeleistungsbereich: 3,5 - 10 kW
- Wirkungsgrad: 82,9 %
- Abgastemperatur: 221 °C
- Abgasmassenstrom bei NWL: 6,9 g/s
- Mindestförderdruck bei NWL: 12 Pa
- CO-Emission (13 % O2) bei NWL: 0,0938 Vol. %
- Staub-Emission (13 % O2) bei NWL: < 40 mg/Nm³
- Durchmesser Abgasstutzen: Ø 150 mm
- Durchmesser Zuluftstutzen: Ø 125 mm
- Verbrennungsluftbedarf: 27,9 m³/h
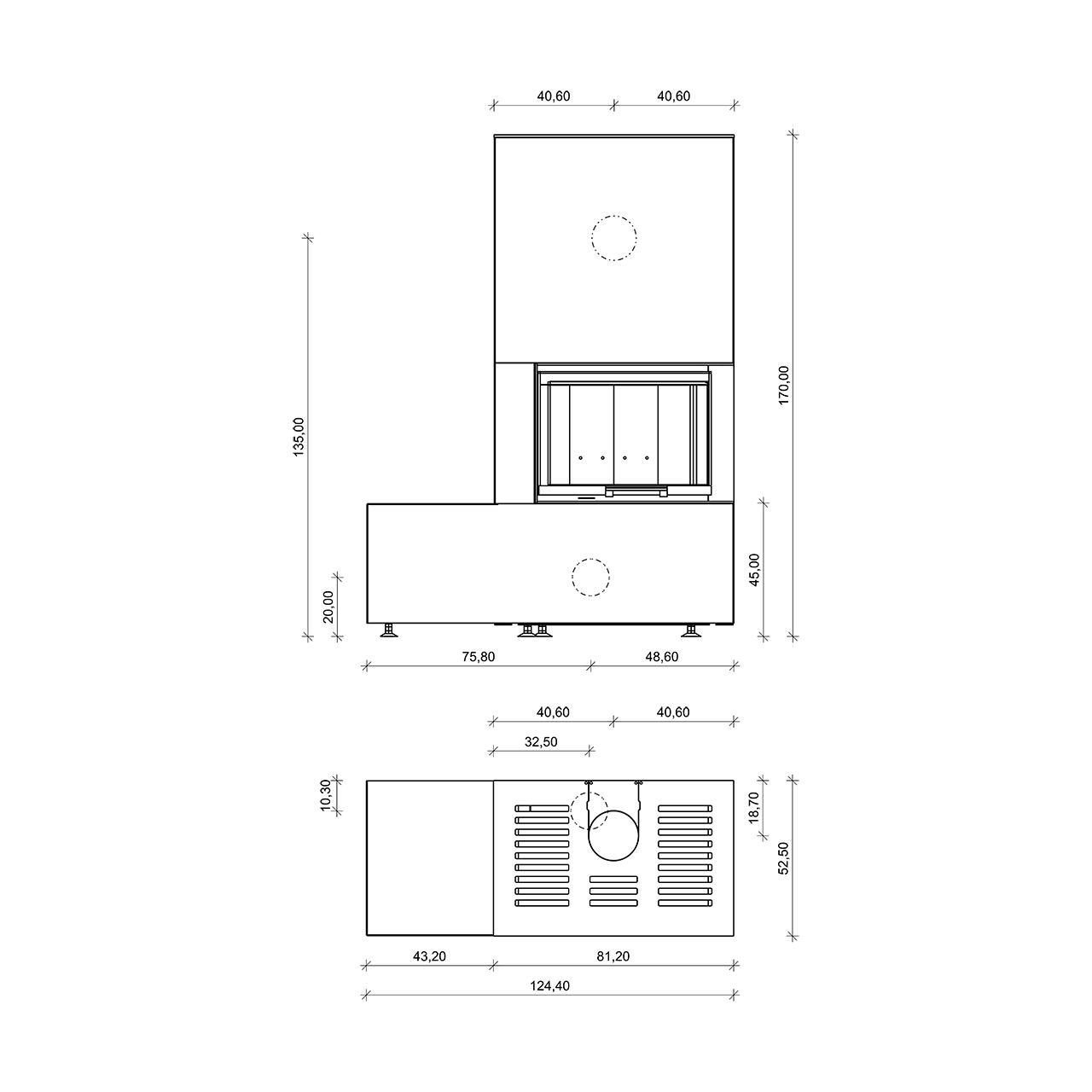
- Höhe Abgang hinten: 135 cm
- Max. Scheitholzlänge: 50 cm
- Max. Holzauflagemenge: 2,25 kg/h
- Erforderliche Brandschutzabstände: hinten 0 / seitlich 0 / Sichtscheibe 80 / vorne 50 cm
- Abmessungen: H170/B120/T52,5 cm
- Abmessungen Türmaße: H43/B58,5/T31 cm
- Gewicht: 356 kg
Optionales Zubehör:
- Zusatzspeicher - Für eine langanhaltende Wärmespeicherung kann der Kaminbausatz Neocube C20 mit einem optionalen Zusatzspeicher aus Naturstein ausgestattet werden, Gewicht ca. 75 kg
| Artikel-Nr.: | 7034668 |
|---|---|
| Energieeffizienzklasse: | aa |
| Farbe: | Beige, Braun |
| Form: | Eckig |
| Oberteil: | Phedra |
| Unterteil: | Iron Corten |
| Brennstoff: | Holz |
| Geprüft: | 15a BVG, BImSchV St. 2 |
| Nennleistung kW, direkt: | 7 |
| Verbrennungsluft: | Raumluftunabhängig |
-
Prüfzertifikat
-
Montageanleitung
-
Leistungserklärung
-
Datenblatt
-
EU Produktdatenblatt
-
Energieeffizienzlabel
Einbaukamine
freistehende Öfen
alternative Brennstoffe
Schornsteinsysteme
Schornsteinzubehör
Schornsteinaufbauten
Abgasrohre
Sicherheit
Accessoires
Wartung
Reinigung
Heiztechnik
Heizungszubehör
Speicher
Angebote im XXL Sale %
wenig Platz
Brennstoff
Zubehör
Smoken
Grillart
Backofen
Wellness
Feuerstellen
Außenküche
Unsere Markenwelt